尊敬的全院师生:
为进一步打造宜学宜业和美公司,营造师生舒心的学习工作氛围,公司将于7月5日至8月25日逐步开展公司楼卫生间及饮水保洁间(施工区域如图1、2),三楼院办341、323、343会议室及三楼东侧露台区域(施工区域如图3)环境改造工作,1-4楼重点公共区域文化环境提升工作。工程预计为期51天。
施工期间,相关区域使用注意事项如下:
一、公司楼卫生间及饮水保洁间区域
除公司一楼及三楼院办区域已改造的三个饮水间可正常使用外,主楼1-5楼卫生间及未改造的饮水保洁间将自7月5日(周三)起停用,烦请各位师生移步至副楼或其他相应区域使用;副楼1-5楼卫生间及饮水保洁间可正常使用至7月20日,随后封闭停用进行改造。上述区域预计封闭停用、施工至8月25日。
二、三楼院办341、323、343会议室区域
公司三楼院办341、323、343会议室将于7月15日(下周六)至8月25日采取封闭管理并停止使用,进行整体环境改造提升。
三、三楼东侧露台及1-4楼电梯口等公共区域
公司主楼三楼东侧露台及公共廊道区域将于7月11日(下周二)起暂时封闭施工;1-4楼电梯口、报告厅等公共区域将于7月15日(下周六)起逐步开展文化环境提升工作。
请各位来往师生注意绕行,避让上述施工区域,提防安全隐患,注意人身安全。
对于7月5日-8月25日施工阶段上述区域暂时封闭带来的诸多不便,敬请各位师生谅解。
诚挚感谢全院师生对公司环境改造提升工作的理解和支持!
公司办公室
2023年7月5日
附件-——施工区域示意图:

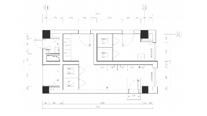
图1 公司副楼1-5楼卫生间区域

图2 公司主楼1-5楼卫生间区域

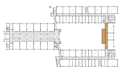
图3 公司东楼三楼外侧露台及公共廊道区域